Zapraszamy do zapoznania się z ofertą przestronnego mieszkania o powierzchni 61,5m2 usytuowanego w świetnej lokalizacji ul. Sukienna, osiedle Przydworcowe. W pobliżu ścisłego centrum Białegostoku.
Nieruchomość znajduje się na drugim piętrze w niskim, 3-piętrowym bloku z cegły. Budynek otoczony zielenią i pełną infrastrukturą. Mieszkanie jest gotowe do wprowadzenia.
Budynek ze starszej cegły po termomodernizacji w 2005 roku.
Czysta i estetyczna klatka schodowa, wyremontowana w 2023 roku.
Mieszkanie stanowi idealną propozycję zarówno dla inwestora , jak i dla rodziny z dziećmi.
Spokojna uliczka z miejscami parkingowymi przy budynku, wjazd/wyjazd na osiedle przez szlaban.
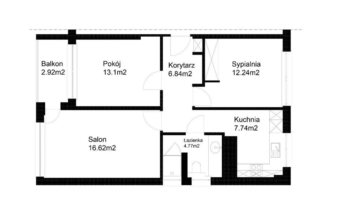
Mieszkanie 3 pokojowe
- salon z klimatyzacją i wyjściem na loggię
- dwie sypialnie (jedna z nich posiada klimatyzację)
- oddzielna kuchnia z dużymi oknami
- łazienka z toaletą i dużym prysznicem 90x100cm
- przedpokój
- do mieszkania przynależy piwnica 7,9 m2
STAN PRAWNY:
pełna własność z księgą wieczystą
Lokalizacja:
Nieruchomość cieszy się wyjątkową lokalizacją na jednym z najbardziej pożądanych osiedli Białegostoku. W pobliżu znajduje się Dworzec PKS i PKP oraz przystanki Białostockiej Komunikacji Miejskiej. Ratusz i Rynek Kościuszki, w odległości kilku minut spacerem.
Dostęp do pełnej infrastruktury, zapewniającej wygodę mieszkańcom - sklepy, restauracje, placówki edukacyjne, placówki zdrowotne, oraz inne ułatwienia są dostępne w zasięgu ręki.
Oferta na wyłączność, dostępna jest tylko w naszym biurze.
Serdecznie zapraszamy do kontaktu w celu umówienia się na prezentację.
Katarzyna Ostapczuk
tel. 571 405 223
Powyższa oferta ma charakter informacyjny i nie stanowi oferty handlowej w rozumieniu srt.66 Kodeksu Cywilnego
Mieszkanie 3 pokojowe 61,5 m2 ul. Sukienna
lokalizacja: Białystok, Sukienna
519 000,00 PLN
8 439,02 PLN
Dane szczegółowe
- Typ transakcji: sprzedaż
- Typ nieruchomości: Mieszkanie
- Lokalizacja: Białystok, Sukienna
- Powierzchnia:61,50 m2
- Liczba pokoi: 3
- Rok budowy: 1962
- Piętro: 2 z 3
- Numer oferty: 535899
- Cena: 519 000,00 PLN
- Cena za m2: 8 439,02 PLN
Opis nieruchomości
Kontakt do opiekuna:
Sherlock Home